Ножничный подъемник ППП40 для подъёма экскаваторов 40 т
- Усилие 40т
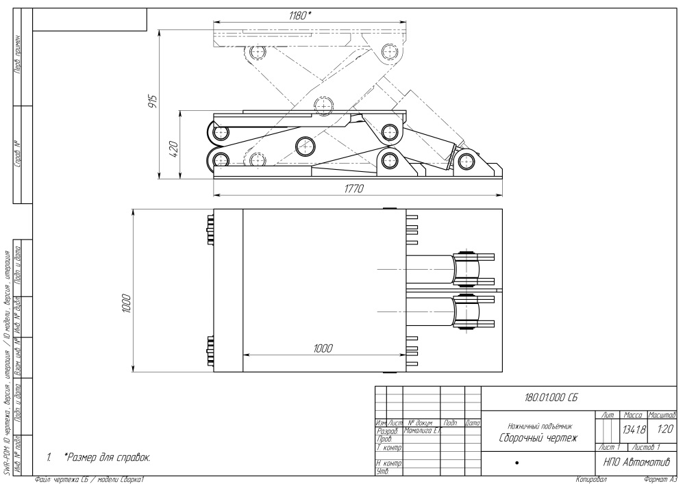
- Масса (без станции и пульта управления)- 1340кг
- Длина/ширина-1770мм/1000мм (справочные размеры)
- Высота подхвата-420мм
- Максимальная высота-900мм
Стоимость указана при подписании стандартного Договора на условиях производителя.
Ножничный подъемник ППП40 представляет собой высококачественное оборудование для подъема экскаваторов массой до 40 тонн. Данная модель разработана специально для работы с тяжелой спецтехникой, что позволяет обеспечить надежное и безопасное обслуживание. Максимальная высота подъема составляет 0,9 метра, что делает подъемник идеальным решением для автосервисов и ремонтных мастерских.
Одна из основных особенностей ножничного подъемника ППП40 заключается в его конструкции с одной секцией ножничного механизма. Эта особенность позволяет равномерно распределять нагрузку, что значительно снижает требования к фундаменту и полу. В отличие от стационарных пневматических подъемников, данная модель является мобильной, что упрощает ее использование в различных условиях. Подъемник может быть легко подведен под экскаватор в тот момент, когда его необходимо поднять.
Ножничный подъемник ППП40 комплектуется электрогидравлической станцией, которая развивает давление до 700 бар. Управление устройством осуществляется с помощью пульта, что обеспечивает удобство и безопасность в эксплуатации. Конструкция подъемника имеет габариты 1770 мм в длину и 1000 мм в ширину, а высота подхвата составляет 420 мм. При этом масса устройства без станции и пульта управления – 1340 кг.
Преимущества продукции НПО Автомотив делают ножничный подъемник ППП40 привлекательным выбором для владельцев автосервисов. Каждое изделие проходит компьютерное моделирование с использованием современного программного обеспечения, например, SolidWorks. Это позволяет гарантировать высокое качество и надежность конструкции. Гибкое производство дает возможность создать индивидуальные решения согласно специфическим требованиям клиента, включая изготовление дополнительных аксессуаров.
Использование хонингованных труб и полиуретановых уплотнений для производства гидравлических цилиндров обеспечивает долговечность и надежность подъемника. Приятным фактом является простота ремонтопригодной конструкции – в случае необходимости, доступ к стандартным запчастям российского производства значительно упрощает процесс технического обслуживания.
Приобретая ножничный грузовой подъемник ППП40, вы получаете надежное и эффективное оборудование для работы с экскаваторами. Сравнение с импортными аналогами показывает, что стоимость продукции НПО Автомотив в два раза ниже, что делает его доступным для широкой аудитории. Для получения дополнительной информации о ножничном подъемнике ППП40, его характеристиках и возможностях, можете ознакомиться с видео или фото материалами, представленными на нашем сайте.
Вас могут заинтересовать
Если у вас остались вопросы или вы просто хотите получить информацию о продукции, то свяжитесь с нами
Выберите удобный способ консультации:
Запрос успешно отправлен.
Что-то пошло не так.